Ulaştırma ve Altyapı Bakanı
Abdulkadir Uraloğlu, İpsala ve Kipi sınır kapıları arasına yapılacak ikinci
sınır geçiş köprüsü hakkında açıklamalarda bulunarak, proje çalışmalarının
tamamlanmak üzere olduğunu ve 2024 yılı içerisinde tamamlanmasının ardından
yapım ihalesine çıkılacağını söyledi. Meriç Nehri üzerine inşa edilecek köprü
ile Türkiye’nin, Selanik – Sofya – Berlin güzergahındaki fonksiyonel
bağlantısının güçleneceğinin altını çizen Bakan Uraloğlu, köprünün 4 şeritli,
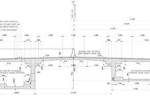
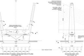
841 metre uzunluğunda ve ekstradoz köprü olacak şekilde tasarlandığını
bildirdi.
Ulaştırma ve Altyapı Bakanı
Abdulkadir Uraloğlu, Türkiye ile Yunanistan arasındaki ulaşım altyapısını
güçlendirmek amacıyla yürütülen İpsala – Kipi Sınır Köprüsü Projesi hakkında
açıklamalarda bulundu. Bakan Uraloğlu, 22 Ocak 2004 tarihinde, iki ülkeyi
bağlayan ulaşım altyapısını geliştirmek için İpsala-Kipi sınır geçiş bölgesinde
yeni bir karayolu sınır geçiş köprüsünün ortak olarak inşa edilmesi maksadıyla
Atina’da Mutabakat Zaptı imzalandığını anımsatarak, “Türkiye ile Yunanistan
arasındaki ilişkileri ve iş birliğini geliştirmek amacıyla önemli adımlar
atıyoruz. 10 Haziran 2006 tarihinde Türkiye ile Yunanistan arasında İpsala-Kipi
İkinci Sınır Geçiş Köprüsü’nün yapılması için imzalanan mutabakat kapsamında
köprü projesinin Yunanistan tarafından yapılacağı kararı alınmıştı. Yürütülen
proje çalışmalarında sona yaklaştık.” ifadelerini kullandı.
İpsala-Kipi İkinci Sınır Geçiş
Köprüsü Proje Çalışmaları 2024’te Tamamlanacak
Yunanistan tarafından yürütülen
proje çalışmalarının tamamlanmak üzere olduğunu ve 2024 yılı içerisinde
bitirilmesinin beklendiğini ifade eden Bakan Uraloğlu, "17 Nisan 2024’te
Selanik’te gerçekleşen Ortak Planlama ve İzleme Projesi Komitesi 9.
Toplantısında da bu konu görüşüldü. Projelerin onaylanmasını takiben yapım
ihale hazırlıklarına başlayacağız. Bu köprü, iki ülke arasındaki ulaşımın daha
da kolaylaşmasına ve ticaretin artmasına katkı sağlayacak." dedi.
Köprü 841 Metre Uzunluğunda ve
4 Şerit
Bakan Uraloğlu, "Bu proje,
sadece Türkiye ve Yunanistan için değil, tüm bölge için büyük önem taşıyor.
Yapım ihale hazırlıkları tamamlandığında, inşaat çalışmaları en kısa sürede
başlayacak. Proje, iki ülke arasındaki dostluk ve iş birliğinin güçlenmesine
katkı sağlamakla kalmayacak aynı zamanda da Türkiye’nin, Selanik – Sofya –
Berlin güzergahındaki işlevsel bağlantısını güçlendirecek. Ayrıca, Türkiye’nin
Egnatia Otoyolu üzerinden Pan-Avrupa Koridoru ve Balkan ülkeleri ile olan
fonksiyonel bağlantısına da hizmet edecek.” şeklinde konuştu. Uraloğlu, Meriç
Nehri üzerine inşa edilecek köprünün 841 metre uzunluğunda ekstradoz köprü
olacak şekilde tasarlandığını belirterek, 1958 yılında yapılan eski köprünün
artan trafiği karşılamaması nedeniyle bu köprünün çift gidiş geliş şeklinde 4
şerit olarak yapılacağını bildirdi.
Web sitemizde sizlere daha etkin, güvenli ve kişiselleştirilmiş bir deneyim sunabilmek için gizliliğe uygun şekilde çerezler kullanılmaktadır. Çerez kullanımına ilişkin tüm detaylara Çerez Politikamızdan ulaşabilirsiniz.
Çerez Politikamızı İnceleyin